Улицы Персоны Памятники Изображения
Найти
Комплекс водопроводной, фильтровальной и электрической станций. Общий вид со стороны улицыФильтровальная стацияЭлектрическая станцияВодопроводная, фильтровальная и электрическая станции. Геплан комплекса: 1. Электрическая станция 2. Фильтровальная станция 3. Водопроводная станция 4. Современные зданияЭлектрическая станция. План 1-го этажа

Персоны

Станции водопроводная, фильтровальная и электрическая. Комплекс. Третья четв. XIX - нач. XX в.

Костромской, р-н/Костромская, обл, д. 1, лит. А, Б

Костромской, р-н/Костромская, обл, д. 3, лит. А

Первый в городе и один из самых ранних в России комплексов коммунальных сооружений санитарно-технического назначения, в архитектуре которого определяющую роль играют свободно трактованные элементы классицизма. Имеет огромное градостроительное значение, оформляя парадный въезд со стороны Волги. Самый старый элемент комплекса – водопроводная станция, построенная в 1869-1870 гг. и первоначально состоявшая из двух корпусов: водоподъемного на берегу Волги и не дошедшего до наших дней водоразборного (кирпичного двухэтажного, в 1880 г. надстроенного третьим этажом) на Воскресенской (ныне Советской) площади.

Увеличение вредных выбросов в реку в связи с интенсивным развитием текстильной промышленности обусловило необходимость строительства фильтровальной станции с электрическим энергообеспечением. Дополнительные государственные субсидии на строительство были получены в связи с подготовкой к празднованию в Костроме 300-летия Дома Романовых. Здания фильтровальной и электрической станций были возведены в 1912-1913 гг. по проекту городского архитектора Н.И.Горлицына. Все постройки выполнены из кирпича, здание водопроводной станции побелено по обмазке, корпуса фильтровальной и электрической станций оштукатурены.

Комплекс расположен рядом с речным вокзалом на крупном озелененном участке продолговатой формы, зажатом между кромкой берега и ул. 1 Мая, идущей параллельно Волге. Основные одно-двухэтажные сооружения вытянуты по красной линии улицы и, благодаря встройкам 1950-х и 1970-х гг., образуют сплошной фасадный фронт с водопроводной станцией на левом фланге, электрической на правом и фильтровальной между ними. В 1950-70-е гг. на территории станции было построено несколько новых зданий, некоторые из которых стилизованы в формах первоначальных сооружений.

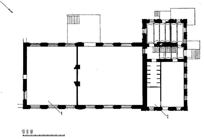
Водопроводная станция – одно из ранних инженерных сооружений санитарно-технического назначения, архитектура которого характеризует стадию перехода от классицизма к кирпичному стилю. Композиция здания, прямоугольного в плане, строится из двух объемов – одноэтажного, конек двускатной кровли которого вытянут параллельно улице, и двухэтажного, также крытого на два ската, с фронтонами на уличном и дворовом фасадах. К торцам здания примыкают поздние пристройки. Скромный декор одноэтажной части сооружения ограничен невысоким оштукатуренным цоколем, угловыми рустованными лопатками и узким венчающим карнизом с зубчиками. Семь крупных окон с лучковыми перемычками заключены в узкие тянутые наличники. Фасад двухэтажной части с тремя осями окон разделен профилированной тягой на два яруса, неравных по высоте (верхний решен как антресоль). В декоре использованы элементы классицизма: крупный руст вперебежку в нижнем этаже, массивный профилированный карниз треугольного фронтона с полуциркульным окном в тимпане (аналогичное окно украшает тимпан на торцовом фасаде одноэтажной части), высокие окна первого этажа, размещенные в прямоугольных нишах. Окна обоих этажей с лучковыми перемычками имеют узкие кирпичные обрамления. Декор дворового фасада аналогичен уличному. От первоначальной планировки здания сохранились лишь две поперечные капитальные стены, делящие внутреннее пространство на небольшой вестибюль в торце и два неравных по площади зала, один из которых частично двусветный.

Фильтровальная станция – редкий пример производственного сооружения в духе неоклассицизма. Прямоугольный в плане объем здания имеет асимметричную композицию. Его левая часть в две оконных оси, с четырехскатной кровлей, чуть повышена относительно основной, в пять оконных осей, вытянутой вдоль улицы и завершенной ступенчатой кровлей на два ската – с устройством верхнего света по коньку. Низкому цоколю вторит пояс на уровне подоконников нижних окон. Оконные проемы, прямоугольные основные и полуциркульные второго света, объединены общей прямоугольной нишей (на флангах) или имеют общее обрамление в виде гладкого архивольта с замком в вершине, опирающегося на пилястры. Под окнами обоих ярусов помещено по три маленьких прямоугольных филенки. Над венчающим профилированным карнизом на флангах возвышаются небольшой ступенчатый аттик (справа) и треугольный фронтон (слева). Планировка здания изменена, первоначальные входы перенесены в примыкающие к нему новые корпуса. Электрическая станция – одна из первых в России. Выразительное по архитектуре здание – исключительно редкий пример использования в производственном сооружении изысканных форм классицизированного модерна. Г-образное в плане здание состоит из двух объемов: в вытянутой вдоль улицы части располагалось машинное отделение, а в перпендикулярной ему угловой, завершенной высокой кровлей гуськового профиля с люкарнами, – административные и жилые помещения. Оба объема имеют единый невысокий цоколь, профилированный под нижними окнами, развитый карниз с фризом, украшенным лепными вставками, и невысокий парапет с квадратными нишками. Шесть больших арочных окон машинного отделения, разделенных лопатками в межоконных простенках, обрамлены профилированными полуциркульными архивольтами с замками, опирающимися на карнизики-импосты. Под окнами – сгруппированные по три небольшие филенки.

Стены административно-жилой части расчленены широкими гладкими пилястрами. Расположенные в два яруса прямоугольные окна, разделенные узким фризом с меандром, обрамлены тянутыми наличниками. Проемы первого этажа, более высокие, отмечены профилированными сандриками на маленьких кронштейнах, окна второго имеют профилированные подоконники, также опирающиеся на кронштейны. Центры уличного и дворового торцовых фасадов, где расположены входы в здание (а на дворовом фасаде и балкон второго этажа), акцентированы своеобразными фигурными аттиками с овальными окошками-люкарнами в наличниках с ушами, фланкированными короткими каннелированными пилястрами. Особо нарядно выглядят здесь прямоугольные лепные вставки фриза с мотивом раковины. Внутри корпус машинного отделения разделен капитальной стеной на два крупных зала. В административно-хозяйственном корпусе оба этажа разделены на две неравных части поперечным коридором, перекрытым параллельными сводиками по балкам. Аналогичные своды в первом этаже имеет юго-западная, обращенная к Волге часть здания, где располагался вестибюль и небольшое помещение конторы смотрителя. Остальная часть здания перепланирована.


Лит: Костромич. Кострома. // КГВ, 1870. 29 ноября. С. 355-356; Журналы заседаний Костромской городской думы за 1900 г. С. 16-17; за 1901 г., с. 63-66; за 1903 г., с. 307-308; за 1910 г., с. 206, 346; за 1912, с. 226-227, 457; за 1913 г., с. 177; Доклад городской костромской управы в Костромскую городскую думу. Кострома, 1909. С. 7-8; Л.Скворцов. Материалы для истории города Костромы. Ч. 1. Кострома, 1913. С. 349; В.Куни. Питьевая вода г. Костромы // Естественно-исторический сборник. Кострома, 1919. С. 16-40; Н.Ф.Басова. Из истории электрификации Костромской области // Блокнот агитатора. № 23. Кострома, 1972. С. 22; Н.Фомина. Самые первые // Северная правда. Кострома, 1974. 26 июня; Л.И.Сизинцева. Городской архитектор Горлицын // Северная правда. Кострома. 1986, 22 июня; В.Смуров. Первое электричество в Костроме // Северная правда. Кострома, 1988, 8 июня; Памятники архитектуры Костромской области. Вып. 1. Ч. 1. Кострома, 1996. С. 58-60.

ГАКО. Ф. 176. Оп. 1. Д. 704. Л. 146, 151, 224; Ф. 207. Оп. 1. Д. 5289. Л. 1-10 об., 27; Ф. Р. 513 (Е.В. Кудряшов). Оп. 1. Д. 120.

О проекте Департамент культурного наследия Костромской области