Улицы Персоны Памятники Изображения
Найти
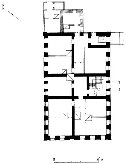
Полицейское управление. Северный фасадПолицейское управление. Западный фасадПлан 1-го этажа

Персоны

Полицейское управление, нач. ХIХ в.

Костромской, р-н/Костромская, обл, д. 4, лит. А

Характерный пример обязательного для губернского города административного здания в формах классицизма. Расположенное в начале улицы рядом с пожарной частью, оно функционально и архитектурно связано с комплексом общественных сооружений, расположенных на главной городской площади. Здание перестроено в 1810 г. по проекту губернского архитектора Н.И. Метлина из сгоревшей полотняной фабрики XVIII в. купца Волкова. В 1847 и 1887 гг. оно сильно пострадало от пожаров, и в 1890-е гг. после последнего из них его уличный фасад получил новый декор в традициях классицизма, но более нарядный и соответствующий вкусам периода эклектики.

Прямоугольный в плане объем кирпичного двухэтажного здания с вальмовой кровлей обращен к улице торцовым юго-западным фасадом. Главный фасад окрашен охрой с побеленными деталями декора. К первоначальным элементам фасадного убранства относятся огибающие лопатки на углах объема, венчающий карниз, раскрепованный в средней части боковых фасадов и украшенный здесь сухариками, и сандрики на кронштейнах над верхними прямоугольными окнами. Первоначальны также три центральных проема второго этажа на боковых фасадах, имитирующие итальянское окно: центральное помещено в арочную нишу, а боковые — более узкие. Главный фасад членится по вертикали полочкой на уровне подоконников нижних окон и широким профилированным поясом, объединяющим подоконники верхних. Рельефному русту и клинчатым замковым камням в прямых перемычках окон первого этажа во втором соответствует плоский дощатый руст и тянутые наличники окон с ушками и профилированными сандриками на кронштейнах. Венчающий карниз дополнен фризом с лежачими филенками. Внутри одна продольная и две поперечные капитальные стены делят пространство каждого этажа на шесть основных частей. В центральной более узкой части против главного входа, расположенного на боковом юго-восточном фасаде, находится парадная междуэтажная лестница. Вторая черная лестница размещена в восточном углу здания. Комнаты вдоль северо-западного фасада изолированы между собой, а вдоль юго-восточного дополнительно соединены анфиладой.


Лит.: Е.В. Кудряшов. Архитектурный ансамбль центра Костромы. Ярославль, 1992. С. 44-45; Памятники архитектуры Костромской области. Вып. 1. Ч. 2. Кострома, 1997. С. 239-240.

ГАКО. Ф. Р. 513 (Е.В. Кудряшов). Оп. 1. Д. 251. РГИА. Ф. 1285. Оп. 8. Д. 317. Л. 1-3; Ф. 1488. Оп. 2. Д. 258. Л. 1-2.

О проекте Департамент культурного наследия Костромской области