Улицы Персоны Памятники Изображения
Найти
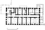
Усадьба В. Дурыгина. ФлигельУсадьба В.  Дурыгина. Главный домПлан 1-го этажа главного дома

Персоны

Усадьба В.А. Дурыгина, кон. XVIII в., сер. XIX в.

Костромской, р-н/Костромская, обл, д. 6, лит. Б

Костромской, р-н/Костромская, обл, д. 8, лит. А, зап. часть

Комплекс является одной из крупных костромских купеческих усадеб, которая включала двухэтажную каменную полотняную фабрику 1793 г. Усадьба устроена купцом первой гильдии В.А.Дурыгиным в конце XVIII в., когда были сооружены главный дом и флигель, соединенные по красной линии улицы оградой с воротами. Флигель, по-видимому, использовался для жилья фабричных служащих, хотя не исключено, что в этом здании размещалась сама полотняная фабрика. Существующий облик фасады главного дома приобрели около середины XIX в. Возможно, тогда же возведен надворный корпус. В XIX в. усадьба оставалась в руках семейства Дурыгиных.

В советское время над флигелем надстроен третий этаж. Кирпичный, оштукатуренный главный дом образует сильно вытянутый вдоль улицы прямоугольный в плане объем, завершенный вальмовой кровлей. Главный фасад, насчитывающий 15 осей окон, выделен в средней части слегка выступающим ризалитом на семь осей проемов. Горизонтальную протяженность фасада усиливают широкий междуэтажный пояс и многопрофилированный венчающий карниз. Прямоугольные окна первого этажа заглублены в ниши-четверти, второго – обрамлены профилированными наличниками и увенчаны сандриками-полочками. Верхние окна ризалита украшены ложными балюстрадами, а сандрики над ними – лепными кронштейнами. Остальные фасады в упрощенной форме повторяют декор уличного фасада. Со стороны двора три центральных проема первого этажа выделены ордером – парой пилястр по сторонам входа и двумя колоннами в соседних простенках. На втором этаже в этом месте устроен балкон с коваными ажурными кронштейнами и решеткой.

Композиционным стержнем планировки всех этажей служит широкий коридор, проходящий по продольной оси почти на всю длину дома. На первом этаже все помещения перекрыты коробовыми и лотковыми сводами со щековыми распалубками над проемами. Парадные комнаты второго этажа с окнами на улицу первоначально образовывали анфиладу. В интерьере сохранились две белокаменные лестницы с коваными ограждениями, тянутые карнизы потолков, двустворчатые филенчатые двери.

Флигель – трехэтажное кирпичное прямоугольное в плане здание, покрытое вальмовой кровлей. Фасады четко разделены междуэтажными профилированными карнизами. Карниз между вторым и третьим этажами (первоначально венчающий) обогащен поясом сухариков. Окна двух основных этажей заглублены в вертикальные прямоугольные ниши, что определяет плоскостный и графичный характер обработки фасада, характерный для архитектуры раннего классицизма.

Кирпичные ограда и ворота расположены вдоль красной линии улицы. Глухая ограда расчленена чередующимися арочными нишами и лопатками. Трехчастные ворота включают центральный прямоугольный проем и калитки с ложными арочными завершениями. Пилоны ворот со стороны улицы обработаны спаренными пилястрами.


Лит.:Памятники архитектуры Костромской области. Вып. 1. Ч. 1. Кострома, 1996. С. 197-198.

ГАКО. Ф. 497. Оп. 2. Д. 7. Л. 107 об. (сохр. частично); Д. 353. Л. 86 (сохр. частично); Д. 403. Л. 60 об. ( не сохр.); Д. 404. Л. 107 об.; Д. 449. Л. 65 об. (сохр. частично); Д. 682. Л. 231 об. (не сохр.); Д. 683. Л. 92 об. (не сохр.); Д. 1325. Л. 200 (не сохр.); Д. 2414. Л. 166 об. (не сохр.); Д. 2497. Л. 1 об.-2; Ф. Р. 513 (Е.В. Кудряшов). Оп. 1. Д. 103; Д. 105. Л. 1-6.

О проекте Департамент культурного наследия Костромской области